Schöne 2-Raum-Wohnung in Merseburg zu verkaufen...
Kontaktieren Sie uns um einen Besichtigungstermin zu vereinbaren oder um ein Exposé abzufordern
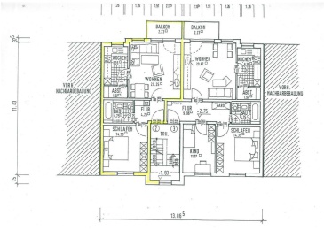
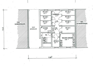
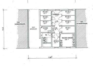
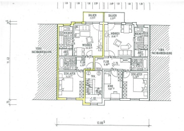
Diese schöne 2-Zimmer-Wohnung befindet sich im 1. Obergeschoss eines gepflegten Mehrfamilienhauses mit insgesamt 8 Wohneinheiten in sehr ruhiger Lage. Sie besteht aus Wohn- und Schlafzimmer, Küche, Bad mit Wanne, Balkon und Keller. Im abgeschlossenen Hof des Hauses befindet sich ein zur Wohnung gehöriger Parkplatz, der im Kaufpreis bereits enthalten ist. Die Wohnung wird über eine Gaszentralheizung mit Wärme und Warmwasser versorgt.
Sollten wir Ihr Interesse geweckt haben, so wenden Sie sich gern an das Team der Jentsch Immobilien.
Oberaltenburg 13
06217 Merseburg
+49 (0)3461-217411