behagliche 3-Zi-Wohnung mit Balkon am Schlossgarten Merseburgs...
Kontaktieren Sie uns um einen Besichtigungstermin zu vereinbaren oder um ein Exposé abzufordern
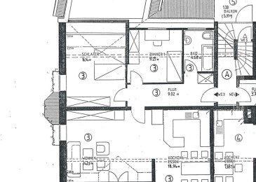
Das Haus ist eines der ältesten Häuser Merseburgs. Es ist ein ehemaliges Kaufmannshaus, das über einen zweietagigen Keller verfügt. Das Wohn- und Geschäftshaus beinhaltet:
im Erdgeschoss ein Steuerbüro und eine Arbeitsvermittlung
im 1. und 2. Obergeschoss je zwei Wohnungen
im 3. OG eine Wohnung.
Im Erdgeschoss gibt es einen separaten Waschraum, in dem eine Waschmaschine aufgestellt werden kann.
Oberaltenburg 13
06217 Merseburg
+49 (0)3461-217411